Quadrilocale in vendita

Cantiano, Via delle Mura
€ 60.000
4 locali 4 locali
90 Mq 90 Mq
1 bagno 1 bagno

Quadrilocale in vendita

Cantiano, Via delle Mura

Descrizione annuncio

Cantiano (PU) - Via delle Mura

A ridosso del centro storico di Cantiano, proponiamo in vendita un appartamento ristrutturato con ingresso indipendente e corte esclusiva.

L'immobile è ideale per chi cerca privacy e tranquillità.
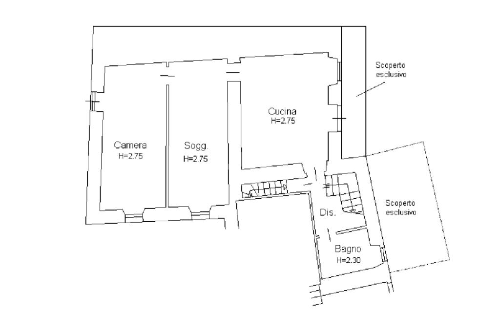
La proprietà è stata ristrutturata a livello di finiture ed impianti, presenta: una cucina abitabile dotata di camino, salotto, due camere da letto matrimoniali, bagno con doccia e balcone.

Completano la proprietà un garage e un fondo, oltre a un posto auto.

Questo immobile rappresenta una soluzione abitativa versatile e accogliente, adatta a diverse esigenze abitative e pronta da subito.

Mostra tutto

Nelle vicinanze

Farmacia Farmacia
Farmacia Comunale Cantiano
260 m
Supermercati Supermercati
Conad
580 m
Bar Bar
Bar
470 m
Night Las Vegas Sexy Disco
2,5 Km
Ristoranti Ristoranti
La Cantina sociale
260 m
Serendipity
1,3 Km
Birrificio del Catria
1,8 Km
La Stazione di posta
2,0 Km
Mostra tutto

Caratteristiche

Rif.:
61186880
Piano:
1 di 3 (Piano rialzato)
Box:
1
Posti auto:
1
Terrazzi:
1
Camere da letto:
2
Mostra tutto
Prezzo Prezzo
€ 60.000
Rata mutuo Rata mutuo
€ 285 / mese
Spese annue Spese annue
€ 0
Proponi il tuo prezzoProponi il tuo prezzo

Classe Energetica

G
G
G
G
G
G
G
G
G
EP invernale del fabbricato:
EP estiva del fabbricato:
Anno di costruzione:
1960
Riscaldamento:
Autonomo
Tipo impianto:
A radiatori
Tipo alimentazione:
Metano

Ti interessa visionare l'immobile?

Fissa un appuntamento  Fissa un appuntamento

Richiedi informazioni

Clicca su Leggi per aprire l'informativa
* Questi campi sono obbligatori

Calcola il tuo mutuo

Semplice e senza impegno
Anticipo

( % )
Mutuo

( % )

pochi semplici passi

inserisci i tuoi dati
Questionario completato
Grazie per aver richiesto un appuntamento senza impegno con un nostro Consulente del Credito e Assicurativo.

Hai inserito correttamente tutti i dati necessari e a breve riceverai una e-mail con un link da convalidare per inviare i tuoi dati.
Affiliato
S.a.r.a. Srl
Corso Garibaldi, 51 06024 Gubbio (PG)

Il nostro staff


  • Alessio Nardelli
    Affiliato

  • Silvia Cenni
    Coordinatrice

  • Carlo Cernicchi
    Responsabile

  • Lorenzo Mosca
    Collaboratore

  • Elisa Radicchi
    Collaboratrice

  • Veronica Sborzacchi
    Collaboratrice
Corso Garibaldi, 51 06024 Gubbio (PG)
Zona: Gubbio
Mostra su mappa
Affiliato
S.a.r.a. Srl
Corso Garibaldi, 51 06024 Gubbio (PG)

2026 Tecnocasa Franchising S.p.A. - P. IVA 08365160152 - Via Monte Bianco 60/A 20089 Rozzano (MI). Ogni agenzia ha un proprio titolare ed è autonoma. Privacy policy | Policy utilizzo | Cookie policy