Palazzina in vendita

Gubbio, Via Monteleto - Monteleto
€ 54.000
Prezzo aggiornato
4 locali 4 locali
80 Mq 80 Mq
1 bagno 1 bagno

Palazzina in vendita

Gubbio, Via Monteleto - Monteleto

Descrizione annuncio

Gubbio (PG) - Frazione Monteleto

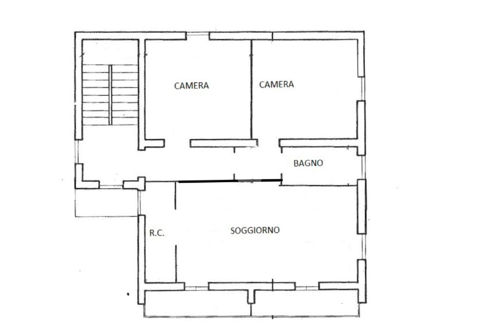
Nel tranquillo e panoramico contesto di Monteleto, proponiamo in vendita un appartamento al piano primo composto da: ingresso, ampio e luminoso soggiorno con camino e balcone e un angolo cottura, due ampie camere da letto, con affaccio sul terreno esclusivo e bagno. La proprietà offre un giardino e un terreno esclusivo.

La posizione è strategica, con servizi facilmente raggiungibili, rendendo la vita quotidiana semplice e confortevole.

Completano la proprietà un fondo e una porzione di soffitta esclusive.

Questa soluzione rappresenta una soluzione ideale per chi desidera vivere immerso nella tranquillità senza rinunciare alla comodità.

Mostra tutto

Nelle vicinanze

Scuole Scuole
D.D. 2^ CIRC. A. MORO GUBBIO
880 m
Farmacia Farmacia
Farmacia Cardinali
1,9 Km
Supermercati Supermercati
Conad
680 m
Negozi Negozi
Pasticceria - Panificio
820 m
Forno di Raggio
1,4 Km
Bar Bar
Bar Bomboletti
710 m
Bar da Giada
1,8 Km
Bar Emma
1,8 Km
Ristoranti Ristoranti
pizzeria al taglio da Mauro
890 m
La Contrada
1,2 Km
Ristorante Pizzeria da Emma
1,8 Km
Mostra tutto

Caratteristiche

Rif.:
61102708
Piano:
2 di 3 (Piano medio)
Box:
1
Posti auto:
1
Balconi:
1
Camere da letto:
2
Mostra tutto
Prezzo Prezzo
€ 54.000
Rata mutuo Rata mutuo
€ 257 / mese
Spese annue Spese annue
€ 0
Proponi il tuo prezzoProponi il tuo prezzo

Classe Energetica

G
G
G
G
G
G
G
G
G
EP invernale del fabbricato:
EP estiva del fabbricato:
Anno di costruzione:
1967
Riscaldamento:
Autonomo
Tipo impianto:
A radiatori
Tipo alimentazione:
Metano

Prezzo ridotto di €1 (13%%)

Ti interessa visionare l'immobile?

Fissa un appuntamento  Fissa un appuntamento

Richiedi informazioni

Clicca su Leggi per aprire l'informativa
* Questi campi sono obbligatori

Calcola il tuo mutuo

Semplice e senza impegno
Anticipo

( % )
Mutuo

( % )

pochi semplici passi

inserisci i tuoi dati
Questionario completato
Grazie per aver richiesto un appuntamento senza impegno con un nostro Consulente del Credito e Assicurativo.

Hai inserito correttamente tutti i dati necessari e a breve riceverai una e-mail con un link da convalidare per inviare i tuoi dati.
Affiliato
S.a.r.a. Srl
Corso Garibaldi, 51 06024 Gubbio (PG)

Il nostro staff


  • Alessio Nardelli
    Affiliato

  • Silvia Cenni
    Coordinatrice

  • Carlo Cernicchi
    Responsabile

  • Lorenzo Mosca
    Collaboratore

  • Elisa Radicchi
    Collaboratrice

  • Veronica Sborzacchi
    Collaboratrice
Corso Garibaldi, 51 06024 Gubbio (PG)
Zona: Gubbio
Mostra su mappa
Affiliato
S.a.r.a. Srl
Corso Garibaldi, 51 06024 Gubbio (PG)

2026 Tecnocasa Franchising S.p.A. - P. IVA 08365160152 - Via Monte Bianco 60/A 20089 Rozzano (MI). Ogni agenzia ha un proprio titolare ed è autonoma. Privacy policy | Policy utilizzo | Cookie policy