Casa indipendente in vendita

Gubbio, Località Spada - Spada
€ 125.000
Prezzo aggiornato
13 locali 13 locali
200 Mq 200 Mq
3 bagni 3 bagni

Casa indipendente in vendita

Gubbio, Località Spada - Spada

Descrizione annuncio

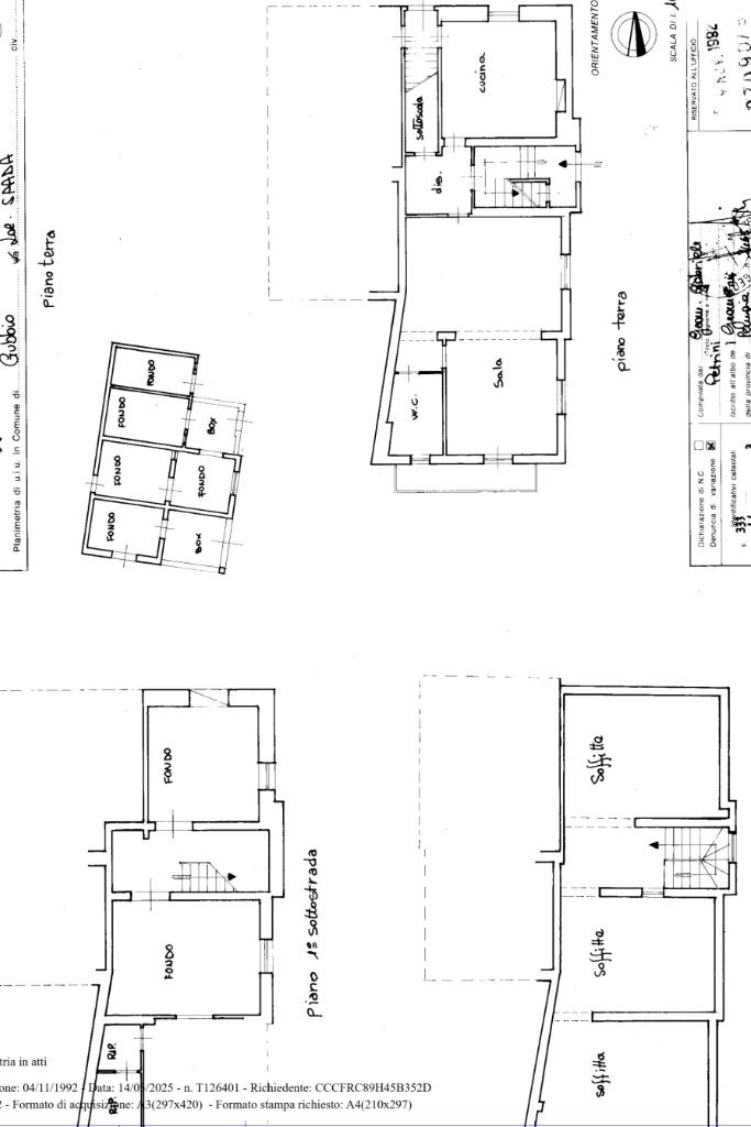
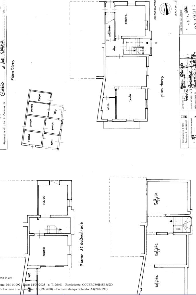
Gubbio (PG) - Frazione Spada.

Proponiamo in vendita un immobile indipendente su più livelli e con 3 ingressi indipendenti.

L'immobile, facilmente divisibile in due proprietà, si compone di soggiorno, angolo cottura e bagno al piano rialzato, tre camere e bagno al piano primo. Tramite accesso sia interno che esterno troviamo un ulteriore salotto con cucina abitabile, due camere e bagno.

Completano la proprietà fondi, garage e terreno della superficie complessiva di circa 1500 mq.

Questa soluzione abitativa si distingue per la sua versatilità e la capacità di adattarsi a diverse esigenze familiari, in una zona tranquilla e ben collegata.

Mostra tutto

Nelle vicinanze

Bar Bar
Bar
30 m
Ristoranti Ristoranti
Ristorante Pizzeria da Fulvio
30 m
Mostra tutto

Caratteristiche

Rif.:
60975113
Piano:
4 di 3 (Piano su più livelli)
Box:
1
Posti auto:
1
Terrazzi:
2
Camere da letto:
5
Mostra tutto
Prezzo Prezzo
€ 125.000
Rata mutuo Rata mutuo
€ 594 / mese
Spese annue Spese annue
€ 0
Proponi il tuo prezzoProponi il tuo prezzo

Classe Energetica

G
G
G
G
G
G
G
G
G
Anno di costruzione:
1980
Riscaldamento:
Autonomo
Tipo impianto:
A radiatori
Tipo alimentazione:
Metano

Prezzo ridotto di €1 (4%%)

Ti interessa visionare l'immobile?

Fissa un appuntamento  Fissa un appuntamento

Richiedi informazioni

Clicca su Leggi per aprire l'informativa
* Questi campi sono obbligatori

Calcola il tuo mutuo

Semplice e senza impegno
Anticipo

( % )
Mutuo

( % )

pochi semplici passi

inserisci i tuoi dati
Questionario completato
Grazie per aver richiesto un appuntamento senza impegno con un nostro Consulente del Credito e Assicurativo.

Hai inserito correttamente tutti i dati necessari e a breve riceverai una e-mail con un link da convalidare per inviare i tuoi dati.
Affiliato
S.a.r.a. Srl
Corso Garibaldi, 51 06024 Gubbio (PG)

Il nostro staff


  • Alessio Nardelli
    Affiliato

  • Silvia Cenni
    Coordinatrice

  • Carlo Cernicchi
    Responsabile

  • Lorenzo Mosca
    Collaboratore

  • Elisa Radicchi
    Collaboratrice

  • Veronica Sborzacchi
    Collaboratrice
Corso Garibaldi, 51 06024 Gubbio (PG)
Zona: Gubbio
Mostra su mappa
Affiliato
S.a.r.a. Srl
Corso Garibaldi, 51 06024 Gubbio (PG)

2026 Tecnocasa Franchising S.p.A. - P. IVA 08365160152 - Via Monte Bianco 60/A 20089 Rozzano (MI). Ogni agenzia ha un proprio titolare ed è autonoma. Privacy policy | Policy utilizzo | Cookie policy