Casa semindipendente in vendita

Gubbio, Via Loreto - Mocaiana
€ 95.000
Prezzo aggiornato
6 locali 6 locali
150 Mq 150 Mq
2 bagni 2 bagni

Casa semindipendente in vendita

Gubbio, Via Loreto - Mocaiana

Descrizione annuncio

Gubbio (PG) - Frazione Loreto

Immerso nel verde della città di Gubbio, proponiamo in vendita porzione di casale in pietra.
La struttura, con ingresso indipendente è disposta su due livelli, così composta:

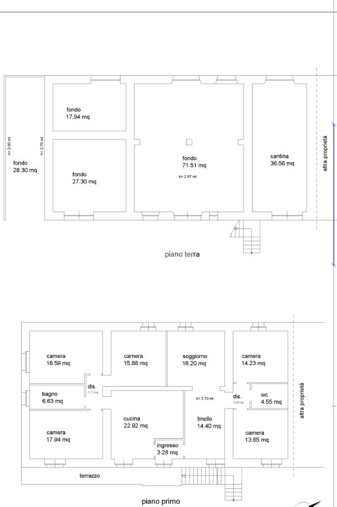
al piano terra, tre vani ad uso cantina: uno di questi, un ex mangiatoia, è composto da archi a volta, anch’essi in pietra.

al piano primo troviamo l’abitazione vera e propria:oltre cento metri quadrati abitabili, composti da una cucina con camino, un'ampia zona giorno, cinque camere da letto, una delle quali servita da balcone, e due bagni. E’ inoltre presente una piccola soffitta pertinenziale. Ampio terreno pertinenziale

Questa soluzione, rappresenta una vera opportunità per chiunque voglia gustare a pieno l’esperienza della campagna.

Tutto in questo contesto richiama al rustico: la pietra del casale, la vista panoramica, la sua posizione.
Un’occasione per staccare dal marasma caotico della città e riavvicinarsi all'armonia della natura.

Mostra tutto

Nelle vicinanze

Scuole Scuole
D.D. 2^ CIRC. A. MORO GUBBIO
650 m
Farmacia Farmacia
Farmacia Cardinali
2,5 Km
Supermercati Supermercati
Conad
620 m
Negozi Negozi
Pasticceria - Panificio
710 m
Forno di Raggio
2,0 Km
Bar Bar
Bar Bomboletti
1,3 Km
Bar da Giada
2,4 Km
Bar Emma
2,4 Km
Ristoranti Ristoranti
pizzeria al taglio da Mauro
700 m
La Contrada
1,8 Km
Ristorante Pizzeria da Emma
2,4 Km
Mostra tutto

Caratteristiche

Rif.:
61083924
Piano:
1 di 2 (Piano rialzato)
Box:
1
Posti auto:
2
Terrazzi:
1
Camere da letto:
5
Mostra tutto
Prezzo Prezzo
€ 95.000
Rata mutuo Rata mutuo
€ 451 / mese
Spese annue Spese annue
€ 0
Proponi il tuo prezzoProponi il tuo prezzo

Classe Energetica

G
G
G
G
G
G
G
G
G
EP invernale del fabbricato:
EP estiva del fabbricato:
Anno di costruzione:
1800
Riscaldamento:
Autonomo
Tipo impianto:
A stufa
Tipo alimentazione:
Altro

Prezzo ridotto di €1 (21%%)

Ti interessa visionare l'immobile?

Fissa un appuntamento  Fissa un appuntamento

Richiedi informazioni

Clicca su Leggi per aprire l'informativa
* Questi campi sono obbligatori

Calcola il tuo mutuo

Semplice e senza impegno
Anticipo

( % )
Mutuo

( % )

pochi semplici passi

inserisci i tuoi dati
Questionario completato
Grazie per aver richiesto un appuntamento senza impegno con un nostro Consulente del Credito e Assicurativo.

Hai inserito correttamente tutti i dati necessari e a breve riceverai una e-mail con un link da convalidare per inviare i tuoi dati.
Affiliato
S.a.r.a. Srl
Corso Garibaldi, 51 06024 Gubbio (PG)

Il nostro staff


  • Alessio Nardelli
    Affiliato

  • Silvia Cenni
    Coordinatrice

  • Carlo Cernicchi
    Responsabile

  • Lorenzo Mosca
    Collaboratore

  • Elisa Radicchi
    Collaboratrice

  • Veronica Sborzacchi
    Collaboratrice
Corso Garibaldi, 51 06024 Gubbio (PG)
Zona: Gubbio
Mostra su mappa
Affiliato
S.a.r.a. Srl
Corso Garibaldi, 51 06024 Gubbio (PG)

2026 Tecnocasa Franchising S.p.A. - P. IVA 08365160152 - Via Monte Bianco 60/A 20089 Rozzano (MI). Ogni agenzia ha un proprio titolare ed è autonoma. Privacy policy | Policy utilizzo | Cookie policy