Casa indipendente in vendita

Gubbio, Località Colpalombo - Colpalombo
€ 100.000
9 locali 9 locali
160 Mq 160 Mq
3 bagni 3 bagni

Casa indipendente in vendita

Gubbio, Località Colpalombo - Colpalombo

Descrizione annuncio

Gubbio (PG) - Località Colpalombo

Nel cuore della suggestiva località di Colpalombo proponiamo in vendita una casa indipendente con terreno pertinenziale, che offre ampi spazi e comfort.

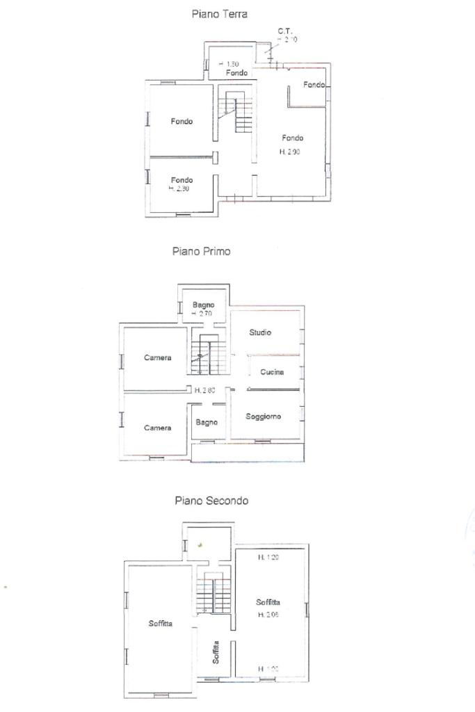
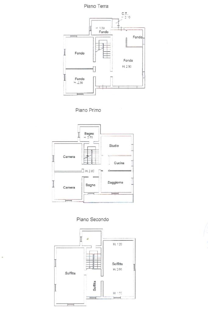
L'immobile si sviluppa su tre livelli e l'appartamento si trova al primo piano dell'edificio.
La zona giorno è caratterizzata da soggiorno con cucina e terrazzo, mentre la zona notte comprende tre camere da letto e un bagno.
Al piano terra presenta un garage con accesso diretto al terreno, due fondi e un bagno. Completa la proprietà una soffitta al piano terzo.

Il giardino privato presenta due annessi e un magazzino, un'oasi di tranquillità ideale per chi ama vivere a contatto con la natura

Questa abitazione rappresenta una soluzione ideale per chi cerca tranquillità e indipendenza in un contesto di campagna.

Mostra tutto

Caratteristiche

Rif.:
61105264
Piano:
2 di 3 (Piano su più livelli)
Box:
1
Posti auto:
3
Balconi:
1
Camere da letto:
3
Mostra tutto
Prezzo Prezzo
€ 100.000
Rata mutuo Rata mutuo
€ 475 / mese
Spese annue Spese annue
€ 0
Proponi il tuo prezzoProponi il tuo prezzo

Classe Energetica

G
G
G
G
G
G
G
G
G
Anno di costruzione:
1966
Riscaldamento:
Autonomo
Tipo impianto:
A radiatori
Tipo alimentazione:
GPL

Ti interessa visionare l'immobile?

Fissa un appuntamento  Fissa un appuntamento

Richiedi informazioni

Clicca su Leggi per aprire l'informativa
* Questi campi sono obbligatori

Calcola il tuo mutuo

Semplice e senza impegno
Anticipo

( % )
Mutuo

( % )

pochi semplici passi

inserisci i tuoi dati
Questionario completato
Grazie per aver richiesto un appuntamento senza impegno con un nostro Consulente del Credito e Assicurativo.

Hai inserito correttamente tutti i dati necessari e a breve riceverai una e-mail con un link da convalidare per inviare i tuoi dati.
Affiliato
S.a.r.a. Srl
Corso Garibaldi, 51 06024 Gubbio (PG)

Il nostro staff


  • Alessio Nardelli
    Affiliato

  • Silvia Cenni
    Coordinatrice

  • Carlo Cernicchi
    Responsabile

  • Lorenzo Mosca
    Collaboratore

  • Elisa Radicchi
    Collaboratrice

  • Veronica Sborzacchi
    Collaboratrice
Corso Garibaldi, 51 06024 Gubbio (PG)
Zona: Gubbio
Mostra su mappa
Affiliato
S.a.r.a. Srl
Corso Garibaldi, 51 06024 Gubbio (PG)

2026 Tecnocasa Franchising S.p.A. - P. IVA 08365160152 - Via Monte Bianco 60/A 20089 Rozzano (MI). Ogni agenzia ha un proprio titolare ed è autonoma. Privacy policy | Policy utilizzo | Cookie policy