Casa indipendente in vendita

Gubbio, Fraz. Petazzano - San Bartolomeo
€ 109.000
6 locali 6 locali
240 Mq 240 Mq
2 bagni 2 bagni

Casa indipendente in vendita

Gubbio, Fraz. Petazzano - San Bartolomeo

Descrizione annuncio

Gubbio (PG) - Frazione Petazzano

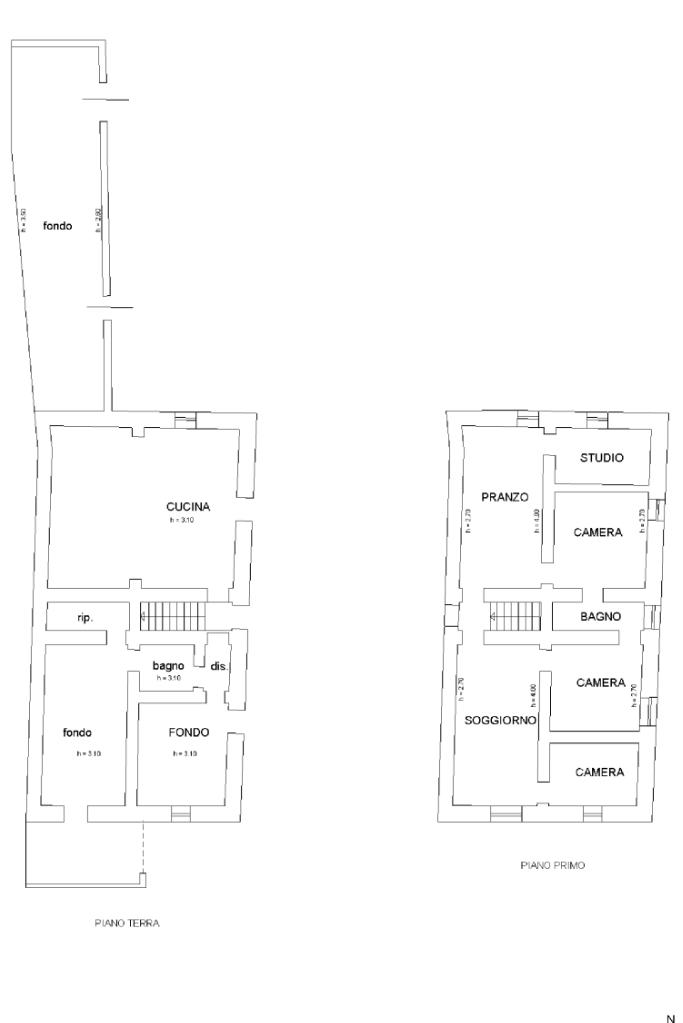
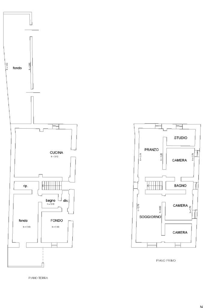
Nel cuore della campagna eugubina, nella tranquilla località di Petazzano, si trova un casale indipendente in pietra, sviluppato su due livelli. Al suo interno, sei locali accolgono una cucina abitabile con camino, un ampio soggiorno, quattro camere da letto e un bagno. Al piano inferiore, collegato internamente da una scala, troviamo le cantine e un bagno. Esternamente si trova un ampia tettoia.

Completa la proprietà un ampio locale rustico con solaio a voltine.

La posizione dell'immobile, offre una vista suggestiva sul paesaggio circostante.

La proprietà include anche delle pertinenze esterne che assicurano comodità e praticità.

All'esterno, un ampio giardino esclusivo si estende dall'esterno dell'immobile fino a circa quattro ettari, implementando al massimo le possibilità di utilizzo degli spazi.

Questo immobile, da ristrutturare, rappresenta un'opportunità unica per chi cerca una residenza spaziosa e immersa nella natura senza rinunciare alla tranquillità e all'indipendenza.

Possibilità di acquisto di ulteriori ettari, fino ad un massimo di dieci.

Mostra tutto

Nelle vicinanze

Farmacia Farmacia
Farmacia Cardinali
2,9 Km
Negozi Negozi
Forno di Raggio
2,9 Km
Bar Bar
Bar Bomboletti
2,9 Km
Bar Emma
2,9 Km
Bar da Giada
2,9 Km
Ristoranti Ristoranti
Isidoro
2,8 Km
La Contrada
2,8 Km
Ristorante Pizzeria da Emma
2,9 Km
Mostra tutto

Caratteristiche

Rif.:
61111968
Piano:
2 di 2 (Piano su più livelli)
Box:
1
Posti auto:
2
Camere da letto:
4
Arredamento:
Completo
Mostra tutto
Prezzo Prezzo
€ 109.000
Rata mutuo Rata mutuo
€ 515 / mese
Spese annue Spese annue
€ 0
Proponi il tuo prezzoProponi il tuo prezzo

Classe Energetica

G
G
G
G
G
G
G
G
G
EP invernale del fabbricato:
EP estiva del fabbricato:
Anno di costruzione:
1906
Riscaldamento:
Autonomo
Tipo impianto:
A radiatori
Tipo alimentazione:
Altro

Ti interessa visionare l'immobile?

Fissa un appuntamento  Fissa un appuntamento

Richiedi informazioni

Clicca su Leggi per aprire l'informativa
* Questi campi sono obbligatori

Calcola il tuo mutuo

Semplice e senza impegno
Anticipo

( % )
Mutuo

( % )

pochi semplici passi

inserisci i tuoi dati
Questionario completato
Grazie per aver richiesto un appuntamento senza impegno con un nostro Consulente del Credito e Assicurativo.

Hai inserito correttamente tutti i dati necessari e a breve riceverai una e-mail con un link da convalidare per inviare i tuoi dati.
Affiliato
S.a.r.a. Srl
Corso Garibaldi, 51 06024 Gubbio (PG)

Il nostro staff


  • Alessio Nardelli
    Affiliato

  • Silvia Cenni
    Coordinatrice

  • Carlo Cernicchi
    Responsabile

  • Lorenzo Mosca
    Collaboratore

  • Elisa Radicchi
    Collaboratrice

  • Veronica Sborzacchi
    Collaboratrice
Corso Garibaldi, 51 06024 Gubbio (PG)
Zona: Gubbio
Mostra su mappa
Affiliato
S.a.r.a. Srl
Corso Garibaldi, 51 06024 Gubbio (PG)

2025 Tecnocasa Franchising S.p.A. - P. IVA 08365160152 - Via Monte Bianco 60/A 20089 Rozzano (MI). Ogni agenzia ha un proprio titolare ed è autonoma. Privacy policy | Policy utilizzo | Cookie policy