Casa indipendente in vendita

Gubbio, Frazione Petazzano - Mocaiana
€ 109.000
Prezzo aggiornato
6 locali 6 locali
240 Mq 240 Mq
2 bagni 2 bagni

Casa indipendente in vendita

Gubbio, Frazione Petazzano - Mocaiana

Descrizione annuncio

Gubbio (PG) - Frazione Petazzano

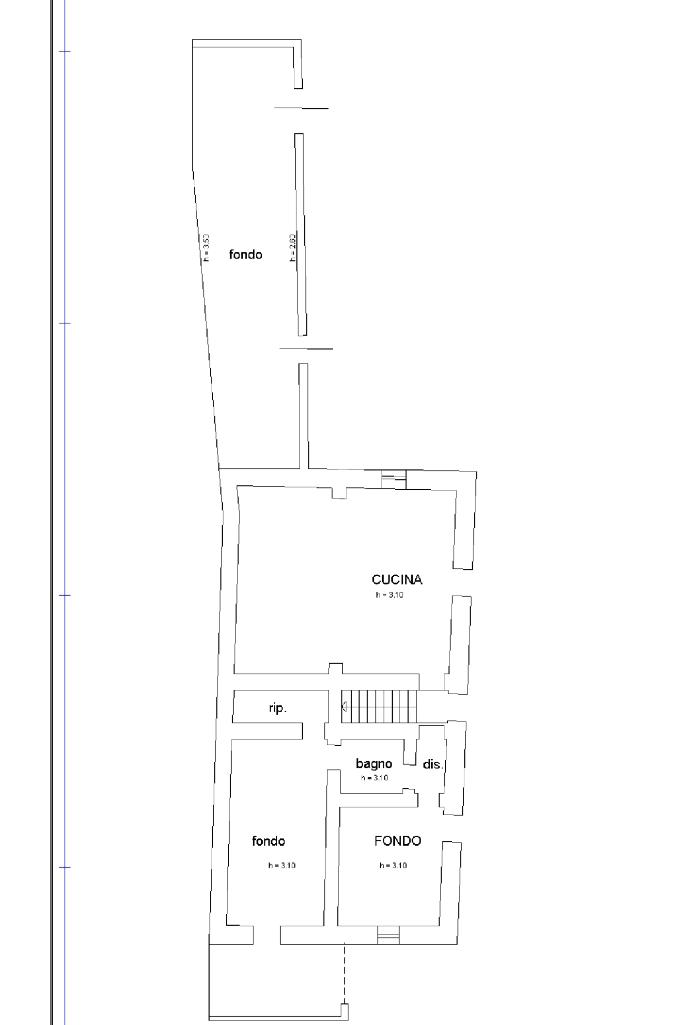
Nel cuore della splendida e verde campagna umbra, proponiamo in vendita un affascinante casale indipendente in pietra, risalente ai primi anni del secolo scorso.

Questa proprietà d'epoca si sviluppa su più livelli, offrendo un ampia cucina rustica con camino, quattro camere da letto e un bagno. Al piano terra, collegato internamente da una splendida scala, si trovano le cantine ed un ulteriore bagno. E' inoltre presente un ampio locale rustico con solaio a voltine.

All'esterno, un ampio giardino reintato circonda la casa.

La proprietà include anche quindici ettari di terreno a corpo, perfetti per chi cerca un contatto con la natura o sviluppare attività affini.

Completano la proprietà due ruderi in pietra, ottimi come ulteriore sviluppo.

Questo immobile è inoltre dotato di una sorgente d'acqua esclusiva.

Questo immobile, da ristrutturare, rappresenta un'opportunità unica per chi desidera vivere un immobile d'epoca, immerso nella bellezza del paesaggio umbro.

Mostra tutto

Caratteristiche

Rif.:
61113475
Piano:
2 di 2 (Piano su più livelli)
Box:
2
Posti auto:
2
Camere da letto:
4
Arredamento:
Completo
Mostra tutto
Prezzo Prezzo
€ 109.000
Rata mutuo Rata mutuo
€ 518 / mese
Spese annue Spese annue
€ 0
Proponi il tuo prezzoProponi il tuo prezzo

Classe Energetica

G
G
G
G
G
G
G
G
G
EP invernale del fabbricato:
EP estiva del fabbricato:
Anno di costruzione:
1906
Riscaldamento:
Autonomo
Tipo impianto:
A radiatori
Tipo alimentazione:
Altro

Prezzo ridotto di €1 (17%%)

Ti interessa visionare l'immobile?

Fissa un appuntamento  Fissa un appuntamento

Richiedi informazioni

Clicca su Leggi per aprire l'informativa
* Questi campi sono obbligatori

Calcola il tuo mutuo

Semplice e senza impegno
Anticipo

( % )
Mutuo

( % )

pochi semplici passi

inserisci i tuoi dati
Questionario completato
Grazie per aver richiesto un appuntamento senza impegno con un nostro Consulente del Credito e Assicurativo.

Hai inserito correttamente tutti i dati necessari e a breve riceverai una e-mail con un link da convalidare per inviare i tuoi dati.
Affiliato
S.a.r.a. Srl
Corso Garibaldi, 51 06024 Gubbio (PG)

Il nostro staff


  • Alessio Nardelli
    Affiliato

  • Silvia Cenni
    Coordinatrice

  • Carlo Cernicchi
    Responsabile

  • Lorenzo Mosca
    Collaboratore

  • Elisa Radicchi
    Collaboratrice

  • Veronica Sborzacchi
    Collaboratrice
Corso Garibaldi, 51 06024 Gubbio (PG)
Zona: Gubbio
Mostra su mappa
Affiliato
S.a.r.a. Srl
Corso Garibaldi, 51 06024 Gubbio (PG)

2026 Tecnocasa Franchising S.p.A. - P. IVA 08365160152 - Via Monte Bianco 60/A 20089 Rozzano (MI). Ogni agenzia ha un proprio titolare ed è autonoma. Privacy policy | Policy utilizzo | Cookie policy