Casa indipendente in vendita

Gubbio, Frazione Casamorcia - Semonte-Casamorcia
€ 75.000
5 locali 5 locali
155 Mq 155 Mq
1 bagno 1 bagno

Casa indipendente in vendita

Gubbio, Frazione Casamorcia - Semonte-Casamorcia

Descrizione annuncio

Gubbio (PG) - Fraz. Casamorcia

Nella campagna di Gubbio, nella località di Casamorcia, si trova una casa indipendente, perfetta per chi cerca tranquillità e spazio

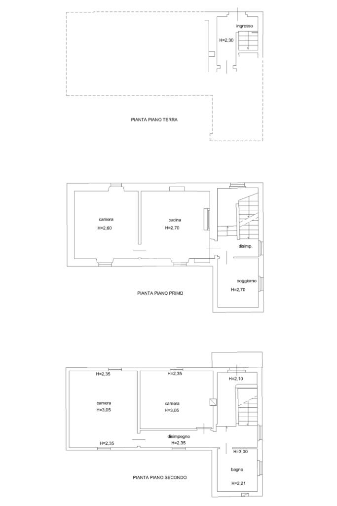
Da ristrutturare, l'immobile si sviluppa su più livelli, ed è composta da: ingresso, cucina, soggiorno, disimpegno e camera da letto al primo piano, due camere da letto, bagno e balconcino al piano secondo e fondi al piano interrato.

All'esterno, ampio giardino di 2000 mq con annessi e ampio spazio per godersi al massimo l'indipendenza e la tranquillità.

Questa casa rappresenta un'opportunità unica per chi desidera ristrutturare e personalizzare un'abitazione immersa nel verde, vicina a Gubbio, ma senza rinunciare alla serenità.

Mostra tutto

Nelle vicinanze

Scuole Scuole
D.D. 2^ CIRC. A. MORO GUBBIO
1,7 Km
Farmacia Farmacia
Farmacia Cardinali
990 m
Supermercati Supermercati
Conad
1,5 Km
Negozi Negozi
Forno di Raggio
510 m
Pasticceria - Panificio
1,6 Km
Bar Bar
Bar Bomboletti
200 m
Bar da Giada
890 m
Bar Emma
940 m
Bar Semonte
2,2 Km
Ristoranti Ristoranti
La Contrada
340 m
Ristorante Pizzeria da Emma
950 m
pizzeria al taglio da Mauro
1,7 Km
Mostra tutto

Caratteristiche

Rif.:
61123890
Piano:
2 di 3 (Piano su più livelli)
Box:
2
Posti auto:
2
Balconi:
1
Camere da letto:
3
Mostra tutto
Prezzo Prezzo
€ 75.000
Rata mutuo Rata mutuo
€ 354 / mese
Spese annue Spese annue
€ 0
Proponi il tuo prezzoProponi il tuo prezzo

Classe Energetica

G
G
G
G
G
G
G
G
G
EP invernale del fabbricato:
EP estiva del fabbricato:
Anno di costruzione:
1960
Riscaldamento:
Autonomo
Tipo impianto:
A stufa
Tipo alimentazione:
Altro

Ti interessa visionare l'immobile?

Fissa un appuntamento  Fissa un appuntamento

Richiedi informazioni

Clicca su Leggi per aprire l'informativa
* Questi campi sono obbligatori

Calcola il tuo mutuo

Semplice e senza impegno
Anticipo

( % )
Mutuo

( % )

pochi semplici passi

inserisci i tuoi dati
Questionario completato
Grazie per aver richiesto un appuntamento senza impegno con un nostro Consulente del Credito e Assicurativo.

Hai inserito correttamente tutti i dati necessari e a breve riceverai una e-mail con un link da convalidare per inviare i tuoi dati.
Affiliato
S.a.r.a. Srl
Corso Garibaldi, 51 06024 Gubbio (PG)

Il nostro staff


  • Alessio Nardelli
    Affiliato

  • Silvia Cenni
    Coordinatrice

  • Carlo Cernicchi
    Responsabile

  • Lorenzo Mosca
    Collaboratore

  • Elisa Radicchi
    Collaboratrice

  • Veronica Sborzacchi
    Collaboratrice
Corso Garibaldi, 51 06024 Gubbio (PG)
Zona: Gubbio
Mostra su mappa
Affiliato
S.a.r.a. Srl
Corso Garibaldi, 51 06024 Gubbio (PG)

2025 Tecnocasa Franchising S.p.A. - P. IVA 08365160152 - Via Monte Bianco 60/A 20089 Rozzano (MI). Ogni agenzia ha un proprio titolare ed è autonoma. Privacy policy | Policy utilizzo | Cookie policy