Casa indipendente in vendita

Gubbio, Via della Volpe - Torre Calzolari
€ 65.000
6 locali 6 locali
120 Mq 120 Mq
1 bagno 1 bagno

Casa indipendente in vendita

Gubbio, Via della Volpe - Torre Calzolari

Descrizione annuncio

Frazione Torre dei Calzolari - Gubbio (PG)

In zona residenziale, precisamente Via della Volpe, si propone in vendita una casa indipendente , ideale per chi cerca un'abitazione da personalizzare.

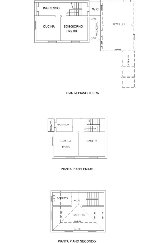
L'ingresso esclusivo a piano terra conduce a un ambiente composto da: cucina con camino e soggiorno, ripostiglio; al piano primo due camere matrimoniali e una camera singola con terrazzo; al piano secondo soffitta praticabile.

Completano la proprietà: un box auto e due posti auto esterni, garantendo comodità e praticità; magazzino esterno dalla proprietà.

Il vero punto di forza è l'ampio giardino, di circa 1.100 mq perfetto per chi desidera uno spazio all'aperto da vivere e personalizzare.

Costruita nel 1954, questa proprietà si sviluppa su più livelli, offrendo ampi spazi e versatilità ed è dotata di pozzo.

Questa casa rappresenta un'opportunità unica per chi desidera un'abitazione indipendente in una zona tranquilla e immersa nel verde.

Mostra tutto

Nelle vicinanze

Bar Bar
Bar
60 m
Ristoranti Ristoranti
Ristorante Pizzeria da Fulvio
40 m
Mostra tutto

Caratteristiche

Rif.:
61129664
Piano:
1 di 3 (Piano su più livelli)
Box:
1
Posti auto:
2
Terrazzi:
1
Camere da letto:
3
Mostra tutto
Prezzo Prezzo
€ 65.000
Rata mutuo Rata mutuo
€ 309 / mese
Spese annue Spese annue
€ 0
Proponi il tuo prezzoProponi il tuo prezzo
Immobile valutato con T·Valuta

Classe Energetica

G
G
G
G
G
G
G
G
G
EP invernale del fabbricato:
EP estiva del fabbricato:
Anno di costruzione:
1954
Riscaldamento:
Autonomo
Tipo impianto:
A radiatori
Tipo alimentazione:
Altro

Ti interessa visionare l'immobile?

Fissa un appuntamento  Fissa un appuntamento

Richiedi informazioni

Clicca su Leggi per aprire l'informativa
* Questi campi sono obbligatori

Calcola il tuo mutuo

Semplice e senza impegno
Anticipo

( % )
Mutuo

( % )

pochi semplici passi

inserisci i tuoi dati
Questionario completato
Grazie per aver richiesto un appuntamento senza impegno con un nostro Consulente del Credito e Assicurativo.

Hai inserito correttamente tutti i dati necessari e a breve riceverai una e-mail con un link da convalidare per inviare i tuoi dati.
Affiliato
S.a.r.a. Srl
Corso Garibaldi, 51 06024 Gubbio (PG)

Il nostro staff


  • Alessio Nardelli
    Affiliato

  • Silvia Cenni
    Coordinatrice

  • Carlo Cernicchi
    Responsabile

  • Lorenzo Mosca
    Collaboratore

  • Elisa Radicchi
    Collaboratrice

  • Veronica Sborzacchi
    Collaboratrice
Corso Garibaldi, 51 06024 Gubbio (PG)
Zona: Gubbio
Mostra su mappa
Affiliato
S.a.r.a. Srl
Corso Garibaldi, 51 06024 Gubbio (PG)

2026 Tecnocasa Franchising S.p.A. - P. IVA 08365160152 - Via Monte Bianco 60/A 20089 Rozzano (MI). Ogni agenzia ha un proprio titolare ed è autonoma. Privacy policy | Policy utilizzo | Cookie policy