Porzione di bifamiliare in vendita

Gubbio, Via dell'Arte dei Calzolari
Informazioni in agenzia
7 locali 7 locali
140 Mq 140 Mq
4 bagni 4 bagni

Porzione di bifamiliare in vendita

Gubbio, Via dell'Arte dei Calzolari

Descrizione annuncio

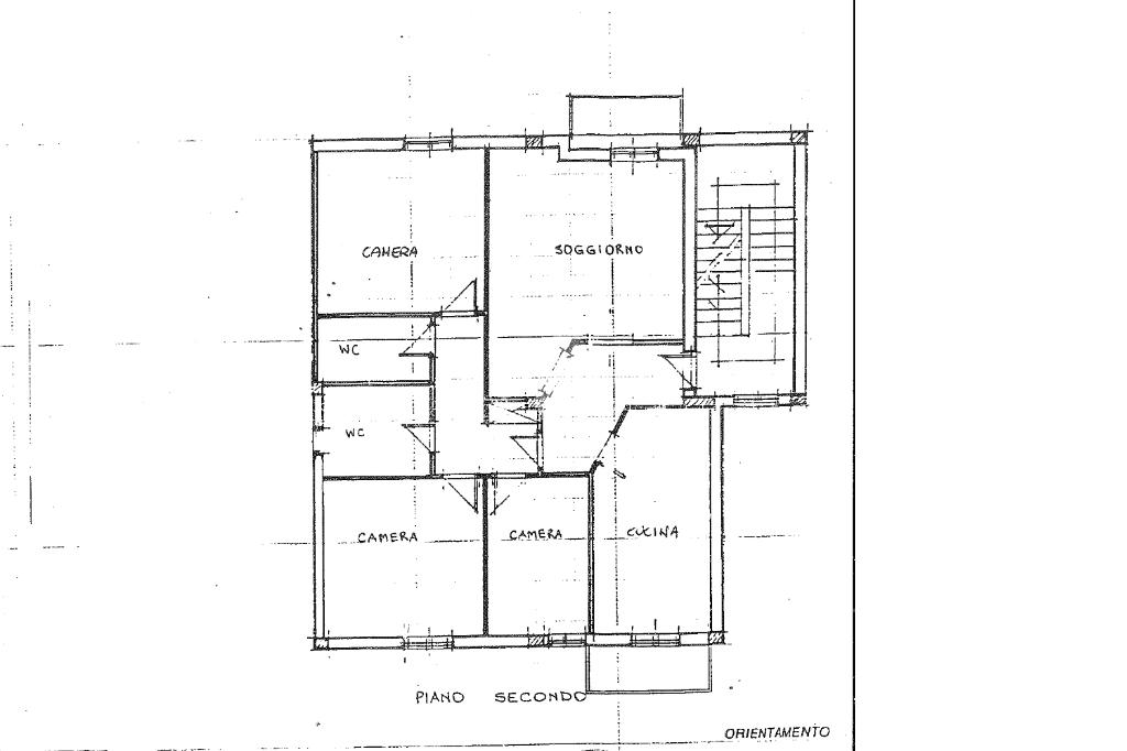
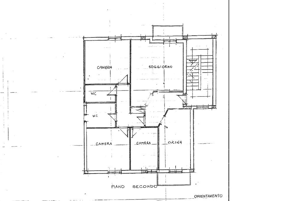
Via dell'Arte dei Falegnami - Gubbio (PG)

In prima periferia e zona residenziale vicina ai principali servizi, proponiamo in vendita una porzione di bifamiliare.

Costruita nel 1993, questa abitazione offre spazi ben distribuiti e una metratura generosa, ideale per chi cerca comfort e funzionalità.
Si sviluppa su un unico livello per una superficie di circa 100mq ed è così composta: soggiorno con balcone e cucina abitabile terrazzata con vista su Gubbio, tre camere e due bagni.
Mansarda soprastante l'appartamento, di circa 40 mq composta da zona giorno, camera e bagno.

Completano la proprietà: giardino condominiale, garage spazioso esclusivo e ampia taverna dotata di bagno.


La posizione strategica consente di godere della tranquillità della periferia senza rinunciare alla comodità di raggiungere il centro di Gubbio in pochi minuti.

Mostra tutto

Nelle vicinanze

Trasporto pubblico Trasporto pubblico
Trasporto pubblico
410 m
Ricariche auto elettriche Ricariche auto elettriche
Eneldrive Piazza 40 Martiri
1,1 Km
Conad Superstore | EnelX
1,1 Km
Scuole Scuole
I.I.S. Mazzatinti - Liceo Classico - Liceo delle Scienze Umane
700 m
Scuole
810 m
Edificio Scolastico 1° Circolo
990 m
I.I.S. Gattapone - Commerciale
1,6 Km
I.T.I. M. L. Cassata
1,9 Km
Farmacia Farmacia
La Vittorina
700 m
Farmacia Pierotti
780 m
Farmacia del centro
1,1 Km
Parafarmacia Conad
1,2 Km
Parafarmacia del corso
1,2 Km
Supermercati Supermercati
Conad City
190 m
Pami Umbria - prodotti per la ristorazione
450 m
Magazzini Santini
540 m
Conad
1,2 Km
Coop
1,2 Km
Negozi Negozi
Tutto Pepe Curvy
530 m
L'angolo del biologico
570 m
Terra bio
790 m
Casagrande
850 m
Alimentari Ronchi
850 m
Bar Bar
Bar Moderno
460 m
Padeletti
1,0 Km
l'eugubino
1,1 Km
centrale
1,1 Km
Bar Jolly
1,2 Km
Ristoranti Ristoranti
Il Postino
670 m
Beniamino Ubaldi
840 m
Ristoranti
860 m
Bella Ischia
950 m
Cucina 89
960 m
Mostra tutto

Caratteristiche

Rif.:
61080008
Piano:
2 di 3 (Piano medio)
Box:
1
Posti auto:
2
Balconi:
1
Terrazzi:
1
Mostra tutto
Prezzo Prezzo
Informazioni in agenzia
Spese annue Spese annue
€ 0
Proponi il tuo prezzoProponi il tuo prezzo

Classe Energetica

E
E
E
E
E
E
E
E
E
EP invernale del fabbricato:
EP estiva del fabbricato:
Anno di costruzione:
1993
Riscaldamento:
Autonomo
Tipo impianto:
A radiatori
Tipo alimentazione:
Metano

Ti interessa visionare l'immobile?

Fissa un appuntamento  Fissa un appuntamento

Richiedi informazioni

Clicca su Leggi per aprire l'informativa
* Questi campi sono obbligatori
Affiliato
S.a.r.a. Srl
Corso Garibaldi, 51 06024 Gubbio (PG)

Il nostro staff


  • Alessio Nardelli
    Affiliato

  • Silvia Cenni
    Coordinatrice

  • Carlo Cernicchi
    Responsabile

  • Lorenzo Mosca
    Collaboratore

  • Elisa Radicchi
    Collaboratrice

  • Veronica Sborzacchi
    Collaboratrice
Corso Garibaldi, 51 06024 Gubbio (PG)
Zona: Gubbio
Mostra su mappa
Affiliato
S.a.r.a. Srl
Corso Garibaldi, 51 06024 Gubbio (PG)

2025 Tecnocasa Franchising S.p.A. - P. IVA 08365160152 - Via Monte Bianco 60/A 20089 Rozzano (MI). Ogni agenzia ha un proprio titolare ed è autonoma. Privacy policy | Policy utilizzo | Cookie policy