Casa indipendente in vendita

Scheggia E Pascelupo, Località Tre Fossi
€ 80.000
Prezzo aggiornato
12 locali 12 locali
300 Mq 300 Mq
3 bagni 3 bagni

Casa indipendente in vendita

Scheggia E Pascelupo, Località Tre Fossi

Descrizione annuncio

Scheggia e Pascelupo (PG) - Località Tre Fossi

Proponiamo in vendita una casa indipendente, ideale per chi cerca ampi spazi e tranquillità.

L'immobile si sviluppa su più livelli e offre una disposizione versatile con ampi spazi interni. I due terrazzi sono l'ideale per godere di momenti di relax, mentre il giardino circostante è perfetto per chi ama il verde.

Attualmente allo stato grezzo avanzato, l'immobile rappresenta un'opportunità per personalizzare gli interni secondo i propri gusti e necessità.

Una soluzione abitativa che unisce spazio, funzionalità e la possibilità di creare un ambiente su misura.

Mostra tutto

Nelle vicinanze

Scuole Scuole
Scuole
1,1 Km
Supermercati Supermercati
Sidis
1,0 Km
Negozi Negozi
Braccini
1,0 Km
Bar Bar
Bar Dedy
1,2 Km
Ristoranti Ristoranti
Divin Peccato rist. pizz.
710 m
La Pineta rist.
1,5 Km
ristorante pizzeria sole e luna
2,6 Km
Mostra tutto

Caratteristiche

Rif.:
61118296
Piano:
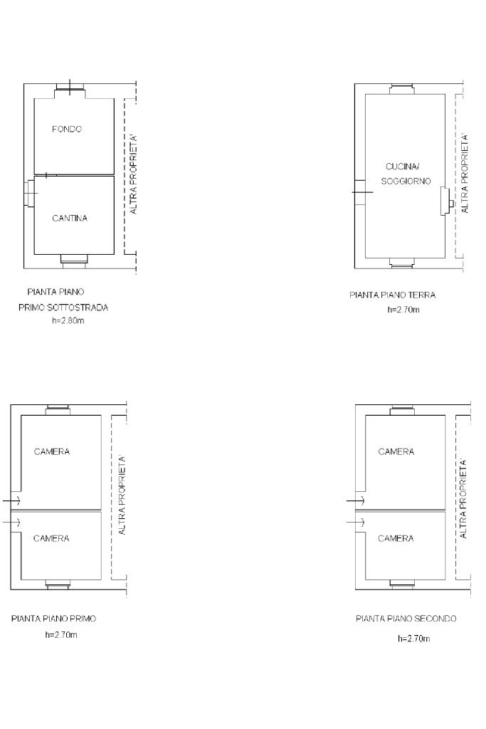
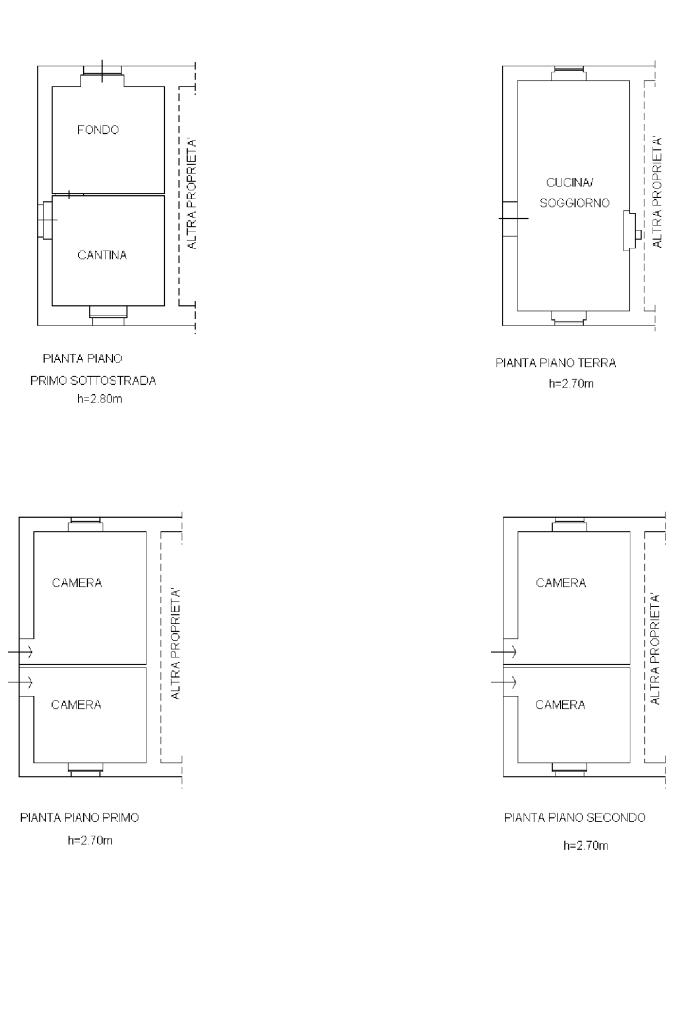
4 di 4 (Piano su più livelli)
Box:
2
Posti auto:
5
Terrazzi:
2
Camere da letto:
3
Mostra tutto
Prezzo Prezzo
€ 80.000
Rata mutuo Rata mutuo
€ 380 / mese
Spese annue Spese annue
€ 0
Proponi il tuo prezzoProponi il tuo prezzo

Classe Energetica

Questo immobile è esente da classe energetica
Anno di costruzione:
1990
Riscaldamento:
Autonomo
Tipo impianto:
A radiatori
Tipo alimentazione:
Metano

Prezzo ridotto di €1 (16%%)

Ti interessa visionare l'immobile?

Fissa un appuntamento  Fissa un appuntamento

Richiedi informazioni

Clicca su Leggi per aprire l'informativa
* Questi campi sono obbligatori

Calcola il tuo mutuo

Semplice e senza impegno
Anticipo

( % )
Mutuo

( % )

pochi semplici passi

inserisci i tuoi dati
Questionario completato
Grazie per aver richiesto un appuntamento senza impegno con un nostro Consulente del Credito e Assicurativo.

Hai inserito correttamente tutti i dati necessari e a breve riceverai una e-mail con un link da convalidare per inviare i tuoi dati.
Affiliato
S.a.r.a. Srl
Corso Garibaldi, 51 06024 Gubbio (PG)

Il nostro staff


  • Alessio Nardelli
    Affiliato

  • Silvia Cenni
    Coordinatrice

  • Carlo Cernicchi
    Responsabile

  • Lorenzo Mosca
    Collaboratore

  • Elisa Radicchi
    Collaboratrice

  • Veronica Sborzacchi
    Collaboratrice
Corso Garibaldi, 51 06024 Gubbio (PG)
Zona: Gubbio
Mostra su mappa
Affiliato
S.a.r.a. Srl
Corso Garibaldi, 51 06024 Gubbio (PG)

2026 Tecnocasa Franchising S.p.A. - P. IVA 08365160152 - Via Monte Bianco 60/A 20089 Rozzano (MI). Ogni agenzia ha un proprio titolare ed è autonoma. Privacy policy | Policy utilizzo | Cookie policy